WOHNUNGSUMBAU ASCONA

1 von 7
2 von 7
3 von 7
4 von 7
5 von 7
6 von 7
7 von 7

Umbau einer Wohnung in Ascona.

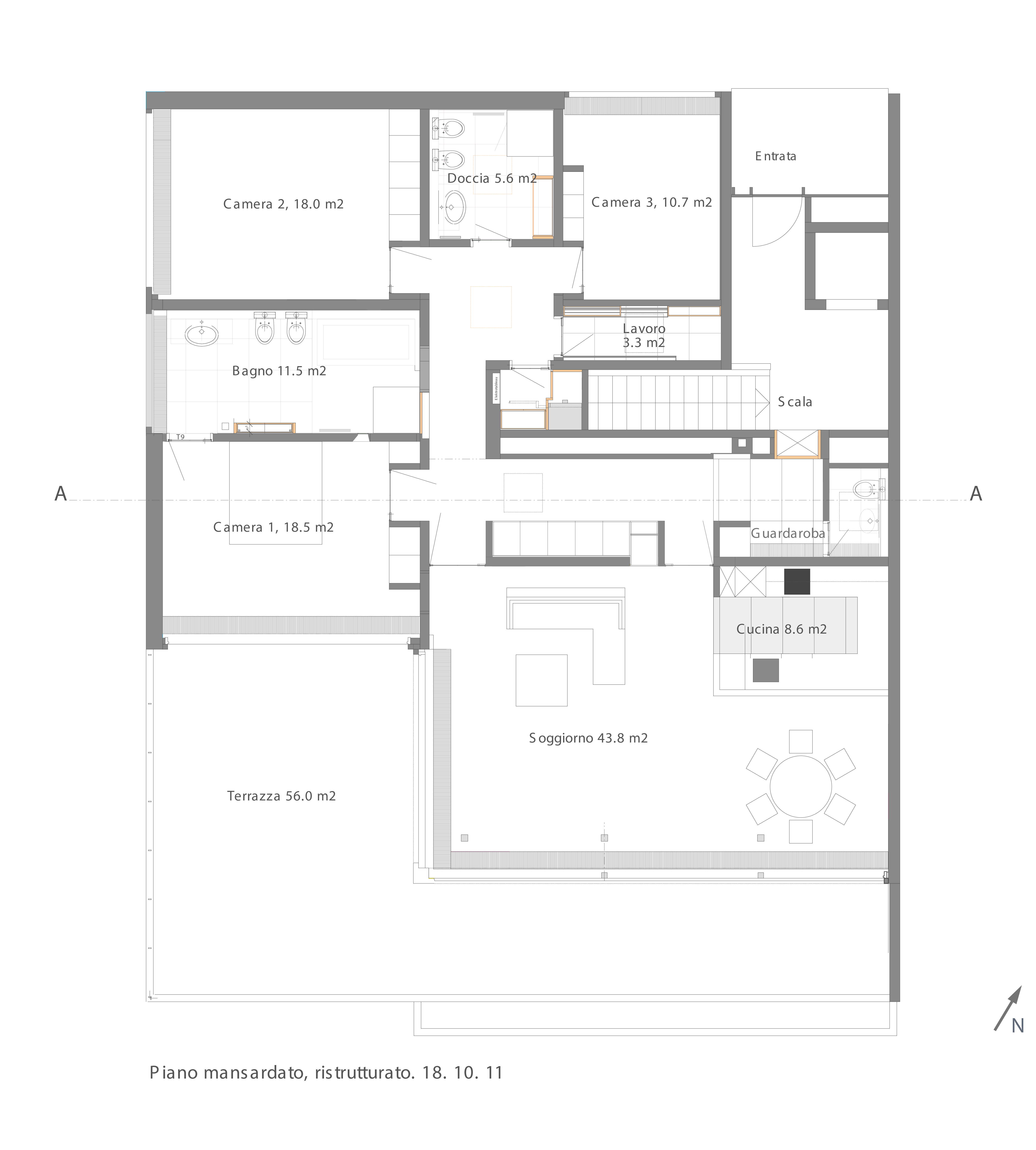
Eine Etagenwohnung (Appartamento attico) wurde neu erworben und sollte einer kompletten Renovation unterzogen werden. Bei diesem Eingriff wurde die Küche in den Wohnraum verlegt und anstelle des Küchenraumes eine Verbindung zwischen Badezimmer und Schlafraum hergestellt. Ein verglaster Öffnungsschlitz zwischen Bade- und Schlafzimmer ermöglicht den direkten Blick auf den Lago Maggiore. Auf diese Weise ist ein ständiger Bezug nach außen möglich. Raumhohe Türen geben der Wohnung einen Villencharakter. Die Abfolge der täglichen Funktionen wurde vereinfacht und alle Räume wurden mit Einbauschränken ausgestattet. Das Badezimmer erhielt eine Verkleidung aus Tessiner Granit. Sowohl die Ausstattung, als auch die Beleuchtung sind erneuert worden. Filigrane, raumhohe Schiebefenster trennen Wohnraum und Terrasse. Für die Terrasse konnte ein Landschaftsarchitekt beauftragt werden.
Ausführung: 2012
Peter Baeriswyl, Landschaftsarchitekt: Klaus Scheuber
Standort: Strada Collinetta, Ascona, Tessin CH