EFH OBERRIED

Einfamilienhaus Oberried

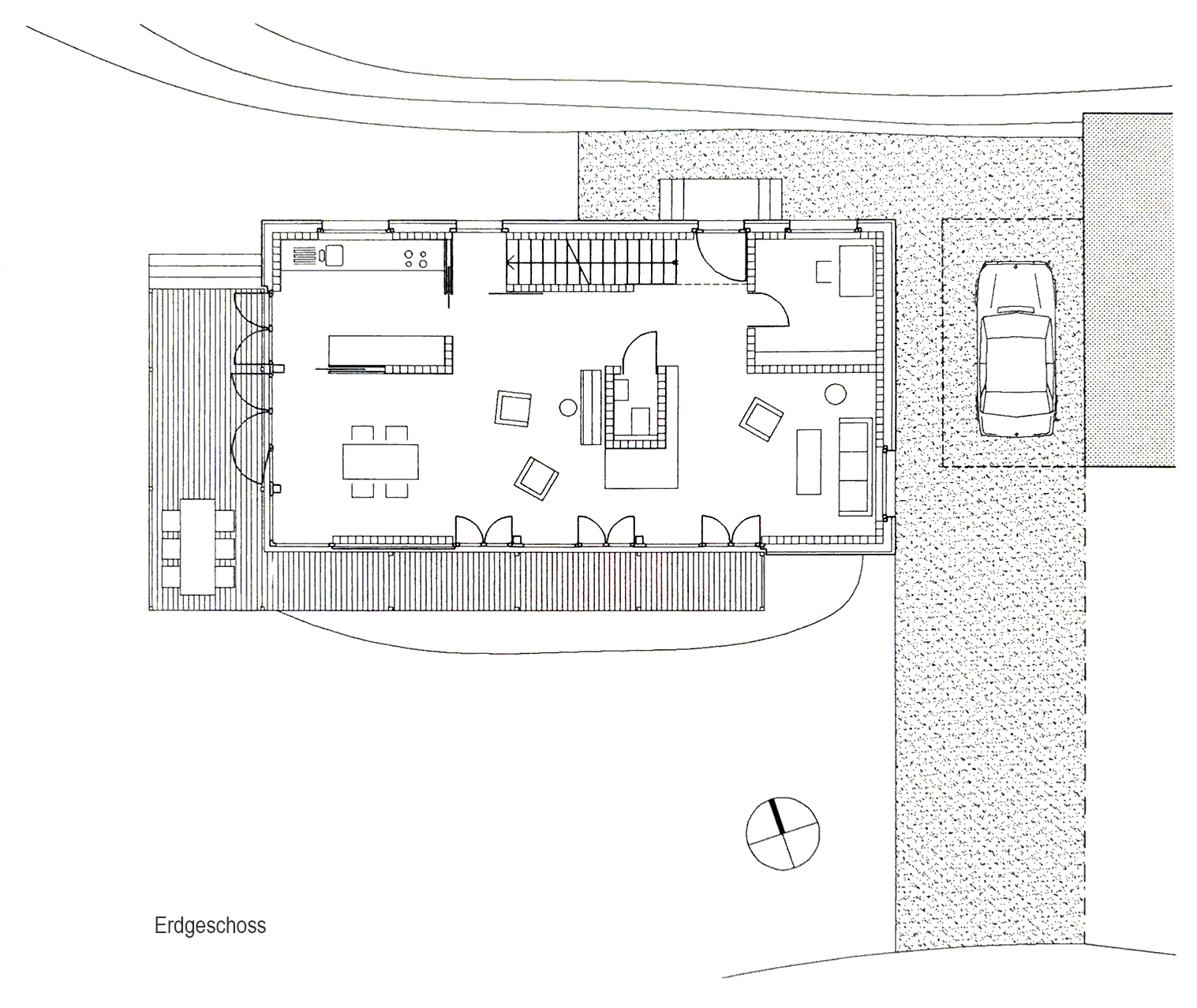
Am Fuße des Schwarzwaldes sollte auf einem ruhig und idyllisch gelegenen Grundstück ein Einfamilienhaus geplant werden, das die Ansprüche energiesparsamen Bauens erfüllt und aus hochwertigen Materialien besteht. Als Konstruktion wurde die im Jahre 2000 noch neuartige Holzmodulbauweise gewählt. Innerhalb von fünf Monaten konnte so ein Einfamilienhaus entstehen, das sich in die Typologie der umliegenden, ländlichen Gebäude einfügt. Durch das offen gestaltete Prinzip an Süd- und Westfassade wird die Wärme eingefangen, während die übrigen Fassaden aus energietechnischen Gründen geschlossener ausgebildet sind. Eine PV-Anlage auf dem Dach sorgt für warmes Wasser und deren Überschuss für Heizenergie. Die Raumaufteilung ist offen gestaltet und bietet die Möglichkeit, später eine horizontale Unterteilung vorzunehmen, sodass ein Zweigenerationenhaus entsteht. An der Nordseite befinden sich Treppe, Badezimmer und ein Küchenbereich, im Süden die Wohn- und Schlafzimmer. Süd- und Westseite werden von einer Terrasse umfasst, die sich im Obergeschoss als Balkon wiederholt. Durch die gewählten Stahlträger erfährt das Haus eine Umrahmung, die sich im oberen Bereich als Abschluss definiert.
Erschienen im Buch „Bauen mit Systemen“ von Christoph Gunßer, DVA Verlag
Konstruktion: Vollholzdecken und Holzmodulelemente mit Zellulosedämmstoffen, Holzfenster
Fertigstellung: 1999
Peter Baeriswyl, Mitarbeit: Cornelia Fässler, Stephan Spichty, Walter Molario
Modulentwicklung: Josef Kolb
Farbgebung: Birgit Baeriswyl, Künstlerin
Standort: Oberried, Schwarzwald DE