EFH RAMLINSBURG

EFH Vauban EFH Vauban EFH Vauban

Einfamilienhaus Ramlinsburg

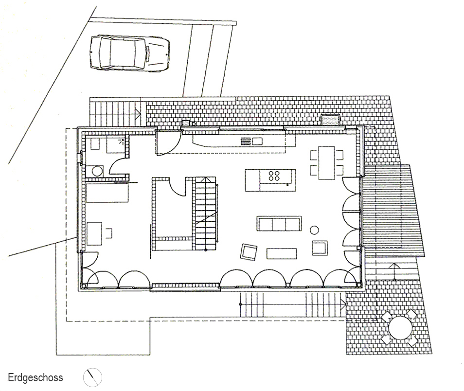
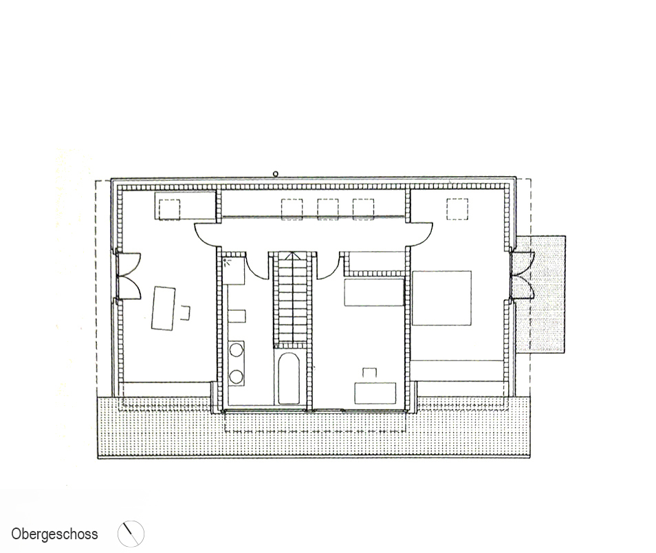
Für eine junge Familie sollte im ländlichen Raum in Ramlinsburg, Kanton Basel-Landschaft, ein Wohnhaus geplant werden. Es galt, sich in die ländliche Umgebung einzufügen und gleichzeitig eine dem Zeitgeist entsprechende Sprache zu formulieren. Ein kleiner Wettbewerb zwischen 3 regionalen Architekturbüros wurde aufgerufen. Mit dem großzügigen Dachüberstand und der Lärchenholzverschalung nimmt das Haus Bezug zu seiner von Bauernhäusern geprägten Umgebung. Sollarkollektoren verbergen sich hinter einer breit gestalteten Gaube. Als Konstruktion wurde eine Holzmodulbauweise umgesetzt, die an Tür- und Fensteröffnungen mit Sturzelementen ergänzt worden ist. Die mit Zellulose gefüllten Elemente erhielten zusätzlich eine äußere Dämmebene. Das Fensterflächenverhältnis zwischen Nord- und Südseite folgt dem Passivhausprinzip. Zur Bauauflage gehörte u. a., die Begrenzung auf ein einziges Vollgeschoss. Der Entwurf folgt dem Terrain und der sehr offen gestaltete Grundriss wird durch mehrere große Terrassentüren untermalt. Ein Erschließungskern im Innern nutzt den weniger belichteten Bereich und verbindet die Geschosse miteinander.
Erschienen im Buch „Wohnen am Hang“ von Christoph Gunßer, DVA Verlag
Konstruktion: Holzmodulelemente, Zellulosedämmstoffe
Modulentwicklung: Josef Kolb
Fertigstellung: 2000
Peter Baeriswyl, Mitarbeit (Planung und Durchführung): Stephan Spichty
Standort: Ramlinsburg, CH
1 von 3
2 von 3
3 von 3