PASSIVHÄUSER VAUBAN

Wohnbausiedlung in der Rahel-Varnhagenstraße

Eine Passivhaus-Wohnbausiedlung mit dem Namen 'Gärtner-Passivhaus'
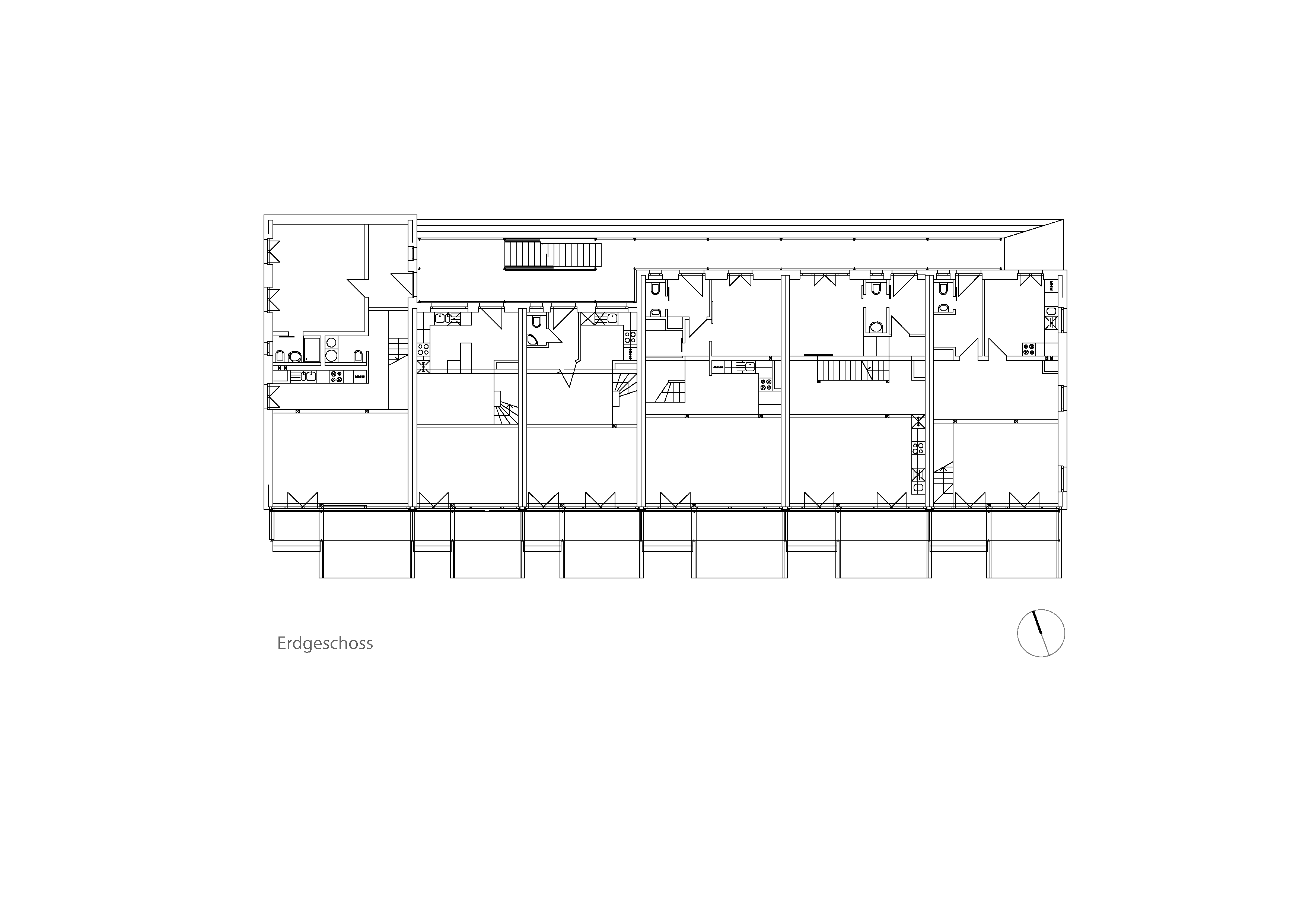
konnte entstehen durch die Auflösung des Militärgeländes an der Merzhauser Straße. Die Stadt Freiburg plante ein fortschrittliches, dem Zeitgeist entsprechendes Wohnquartier, das über die Grenzen hinweg beispielhaft sein sollte. Der im Jahre 1997 noch unübliche Anspruch, in Passivhausbauweise und 4 geschossigem Holzbau zu bauen, konnte verwirklicht werden: Entstanden sind ein Mehrfamilienhaus mit 4 Geschossen und 6 3-stöckige Reihenhäuser. Für insgesamt 18 Parteien, darunter Familien mit älteren und jüngeren Menschen, konnte so ein individueller Wohnraum geschaffen werden. Die Parteien haben sich zu einer Baugemeinschaft GbR zusammengeschlossen und konnten sich bei der Gestaltung mit einbringen. Je nach Bedürfnis und finanziellem Rahmen variieren die Wohnungen in Größe und Aufteilung von ca. 60 mq bis 170 mq. Durch das Versetzen von je zwei Reihenhäusern entstehen Privatsphäre und geschützte Außenbereiche. Zwischen den Reihenhäusern und dem Geschosswohnungsbau befindet sich ein verkehrsgeschützter Innenhof, der als gemeinschaftliche Fläche zur Verfügung steht. Das MFH (Geschosswohnungsbau) bietet in den ersten beiden Geschossen Maisonettewohnungen mit Gartenanteil und für die zwei oberen Etagen eine durchgehende Terrasse. Die Erschließung erfolgt über ein gemeinsames offenes Treppenhaus und Laubengänge aus Holz-/Stahlkonstruktion. Die Planung wurde vom Architekturbüro Peter Baeriswyl mit Andreas Thilo und Mitarbeiter Stephan Spichty erstellt.
Planung und Bauzeit verliefen über ca. 2 Jahre.
Erschienen u.a. im Buch „Energiesparsiedlungen“ von Christoph Gunßer, Callwey Verlag und Zeitschrift Mikado
Fertigstellung: 1999
Peter Baeriswyl, Andreas Thilo, Mitarbeit: Stephan Spichty
Farbgebung: Birgit Baeriswyl, Künstlerin
Standort: Rahel-Varnhagenstr., Vauban, Freiburg im Breisgau Wohnfläche: 1'900 mq
Preis pro mq Wohnfläche einzugsfertig 2'600.- DM
Energiewert 15 kWh/(mq x a)

1 von 6
2 von 6
3 von 6
4 von 6
5 von 6
6 von 6